MPT 353 3-wing

- Компактное размещение для 2-х независимых точек прохода.
- 3 варианта привода: механический, электромеханический и моторизированный.
- Безопасное усилие на створках.
- 3-х створчатое или 4-х створчатое исполнение.
- Разработан с учетом ресурса 10 000 000 циклов.
Двойные турникеты MPT являются идеальным решением для контроля доступа на открытом воздухе, когда требуется два прохода при ограниченном пространстве. Турникеты MPT могут быть точно адаптированы к вашему назначению благодаря предлагаемым вариантам привода: турникет MPT 152 с электроприводом приводится в движение с помощью энергоэффективного, не требующего технического обслуживания привода MHTM™ — первый выбор для обеспечения безопасности на открытых площадках и территории компании. MPT 53 оснащен электромеханическим блоком блокировки, а вращательное движение генерируется самими пользователями — популярный вариант в парках отдыха и на стадионах.
Обе версии привода могут управляться с помощью всех обычных систем контроля доступа и могут работать в обоих направлениях сквозного потока в качестве опции. Чисто механический турникет MPT 50 пропускает посетителей только в одном направлении и, таким образом, особенно подходит для неконтролируемых выходов из плавательных бассейнов и спортивных сооружений. Турникеты MPT также могут быть индивидуально адаптированы к вашим требованиям другими способами: с различными вариантами материалов, вариантами блокировки, дополнительными креплениями и расширениями для велосипедов, инвалидных колясок и транспортировки материалов.
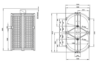
Технические характеристики Тип турникета полноростовой Корпус двупроходный Створки 3 лопасти (120°) Исполнение уличное Направление прохода однонаправленное, двунаправленное Ширина прохода, мм 647 Высота препятствия, мм 1925 Пропускная способность, чел 30 Технология привода электромеханический Класс защиты IP 43 Материал корпуса нержавеющая сталь,
оцинкованная сталь,
сталь с порошковым покрытиемГабаритные размеры, мм 2210×1318×2235 Масса, кг 450 Напряжение питания, В 220 Потребляемая мощность, Вт 50 Рабочая температура, °C -25 .. +55 Дополнительные опции Специальная окраска есть Оборудование освещение,
козырёк,
монтажная рамаФункция «антипаника» есть