MPG 172

- Провоз или пронос груза, проход людей с ограниченными возможностями.
- Безопасное усилие на створках.
- Возможность встраивания индукционной петли в формирователь прохода (опция).
- Энергоэффективный и не требующий обслуживания MHTM™ привод.
- Разработан с учетом ресурса 10 000 000 циклов.
Распашные ворота MPG являются оптимальным решением для наружных ограждений, когда необходимо большое проходное отверстие. Он может быть отдельно стоящим или использоваться в сочетании с турникетом MPT. Распашные ворота имеют угол открывания 90° в обоих направлениях и могут управляться всеми обычными системами контроля доступа. В качестве опции распашные ворота могут быть расширены с помощью односторонней или двусторонней индукционной петли, которая надежно определяет наличие велосипедов и инвалидных колясок.
Распашные ворота энергоэффективны, не требуют технического обслуживания и бесшумны благодаря технологии привода MHTM™. Низкая сила удара и чувствительное обнаружение контакта обеспечивают безопасность пользователя и соответствие строгим европейским стандартам. Благодаря разнообразию вариантов материалов, блокировок и дополнительного навесного оборудования распашные ворота MPG могут быть индивидуально адаптированы к желаемой цели.
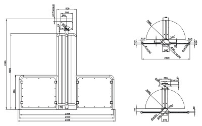
Технические характеристики Тип турникета полноростовой Установка отдельно стоящий Исполнение уличное Направление прохода однонаправленное, двунаправленное Ширина прохода, мм 1070 Высота препятствия, мм 1925 Время открытия/закрытия, с 3 Технология привода MHTM™ Класс защиты IP 43 Материал корпуса нержавеющая сталь,
оцинкованная сталь,
сталь с порошковым покрытиемГабаритные размеры, мм 1623×500×2235 Масса, кг 250 Напряжение питания, В 220 Потребляемая мощность, Вт 50 Рабочая температура, °C -25 .. +50 Дополнительные опции Оборудование индукционная петля для обнаружения инвалидных колясок и велосипедов Функция «антипаника» есть